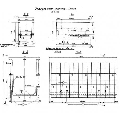
МПЛ 0.75 Лоток тип II
Характеристики изделия:
| Параметр | Значение |
|---|---|
| длина | 1500 мм |
| ширина | 700 мм |
| высота | 850 мм |
| масса | 800 кг |
| нормативный документ | Альбом № 984 |
Цена:
Рассчитать стоимостьЛотки междупутные МПЛ 0.75 тип II, Альбом № 984.
Применяются лотки МПЛ 0.75 для пропуска воды вдоль железнодорожных путей. Лотки этого типа как правило укладываются в междупутьях с пониженных отметок при пилообразном профиле земляного полотна и верха балластного слоя станционных парков.
МАРКИРОВКА
Маркировка бетонных блоков МПЛ 0.75 состоит из буквенно-цифровых групп:
МПЛ бетонный блок междупутного лотка
0,75 глубина лотка в метрах
