С 8-30
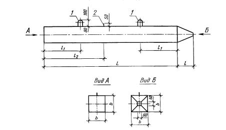
Характеристики изделия:
| Параметр | Значение |
|---|---|
| длина | 8000 мм |
| ширина | 300 мм |
| высота | 300 мм |
| масса | 1830 кг |
| нормативный документ | ГОСТ 19804.1-79 |
Цена:
Рассчитать стоимостьС 8-30 Сваи забивные сплошного квадратного сечения с ненапрягаемой продольной арматурой ГОСТ 19804.1-79.