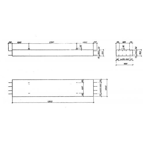
ВП 49
Характеристики изделия:
| Параметр | Значение |
|---|---|
| длина | 4900 мм |
| ширина | 1000 мм |
| высота | 360 мм |
| масса | 4410 кг |
| нормативный документ | Альбом РК 2303-86 |
Цена:
Рассчитать стоимостьВП 49 Верхняя плита (плита перекрытия) с индивидуальной технологической оснасткой Альбом РК 2303-86.
