Ф2

Чертеж изделия:
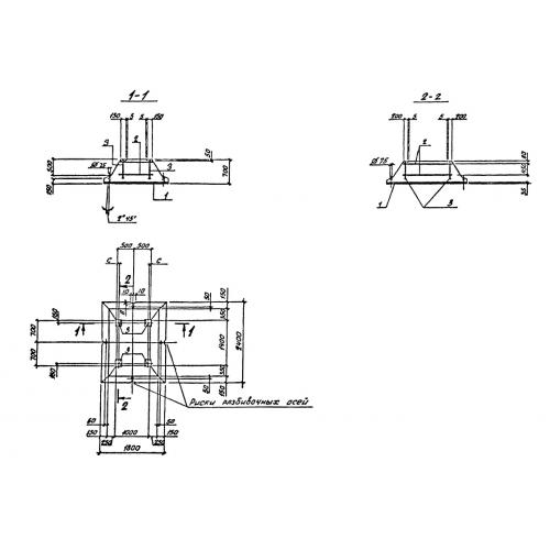
Характеристики изделия:
ПараметрЗначение
длина1800 мм
ширина2400 мм
высота700 мм
вес4830 кг
серия0-221-84

Ф2 Плиты фундаментные по серии 0-221-84.