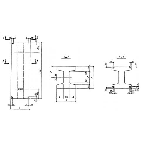
ПБ 9.14.30
Характеристики изделия:
| Параметр | Значение |
|---|---|
| длина | 900 мм |
| ширина | 1400 мм |
| высота | 2990 мм |
| вес | 5620 кг |
| серия | 0-221-84 |
Цена:
Рассчитать стоимостьПБ 9.14.30 Блоки промежуточные по серии 0-221-84.
| Параметр | Значение |
|---|---|
| длина | 900 мм |
| ширина | 1400 мм |
| высота | 2990 мм |
| вес | 5620 кг |
| серия | 0-221-84 |
ПБ 9.14.30 Блоки промежуточные по серии 0-221-84.
