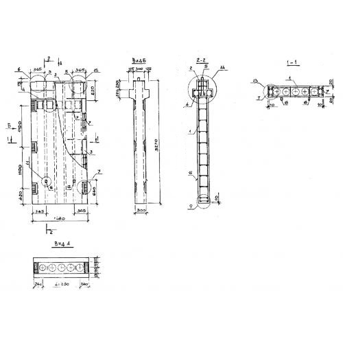
ВД 33-15-30 вентиляционные блоки

Чертеж изделия:
Характеристики изделия:
ПараметрЗначение
длина1480 мм
ширина500 мм
высота3270 мм
масса2620 кг
нормативный документСерия 1.034.1-1/90

ВД 33-15-30  Вентблоки-диафрагмы жесткости Серия 1.034.1-1/90.