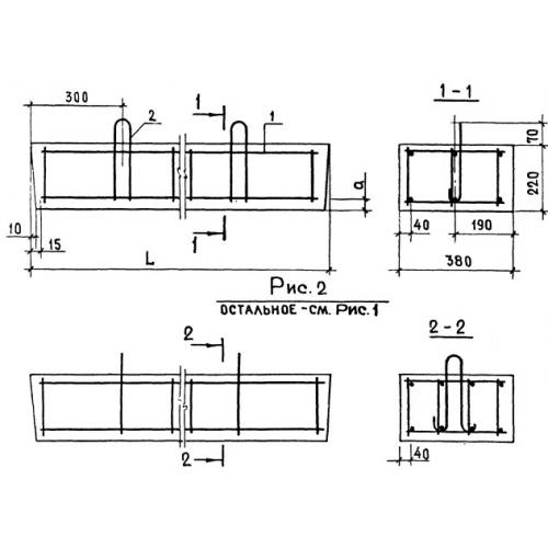
3ПП 18 перемычки плитные
Характеристики изделия:
| Параметр | Значение |
|---|---|
| длина | 1810 мм |
| ширина | 380 мм |
| высота | 220 мм |
| масса | 378 кг |
| нормативный документ | Серия 1.038.1-1 |
Цена:
Рассчитать стоимость3ПП 18 Железобетонные перемычки плитного типа Серия 1.038.1-1.
| Параметр | Значение |
|---|---|
| длина | 1810 мм |
| ширина | 380 мм |
| высота | 220 мм |
| масса | 378 кг |
| нормативный документ | Серия 1.038.1-1 |
3ПП 18 Железобетонные перемычки плитного типа Серия 1.038.1-1.
