ПШЛ 50-36

Чертеж изделия:
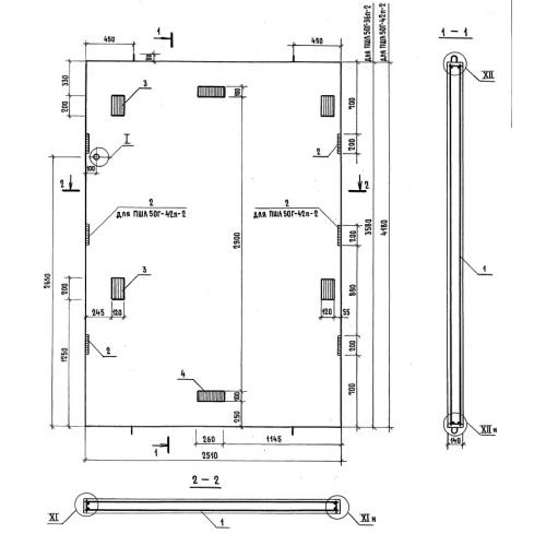
Характеристики изделия:
ПараметрЗначение
длина2510 мм
ширина140 мм
высота3580 мм
вес3150 мм
серия1.089.1-2

ПШЛ 50-36 Панель шахты для пассажирского лифта по серии 1.089.1-2.