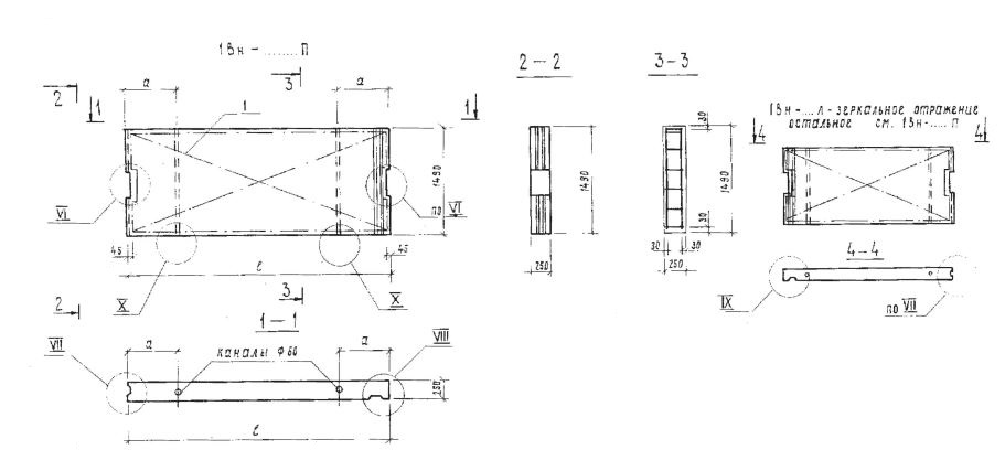
1Вн-60.15-2п(л)
Характеристики изделия:
| Параметр | Значение |
|---|---|
| длина | 6020 кг |
| ширина | 250 мм |
| высота | 1490 мм |
| масса | 2045 кг |
| нормативный документ | Серия 1.131-17 |
Цена:
Рассчитать стоимость1Вн-60.15-2п Нижние изделия для стеновых панелей группы 1ПСВ (Серия 1.131-17).
1Вн-60.15-2л
