НР1-66.29.35-7л-1

Чертеж изделия:
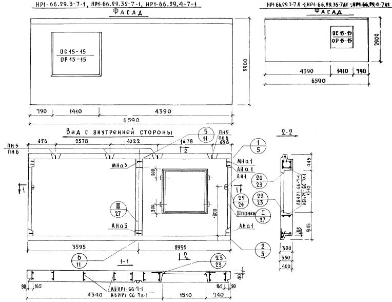
Характеристики изделия:
ПараметрЗначение
Длина6590 мм
Ширина350 мм
Высота2900 мм
Масса8060 кг
Нормативный документСерия 1.132-1

НР1-66.29.35-7л-1   Наружная стеновая панель рядовая по Серии 1.132-1.