СБ 5.5-9.24.6-п-1

Чертеж изделия:
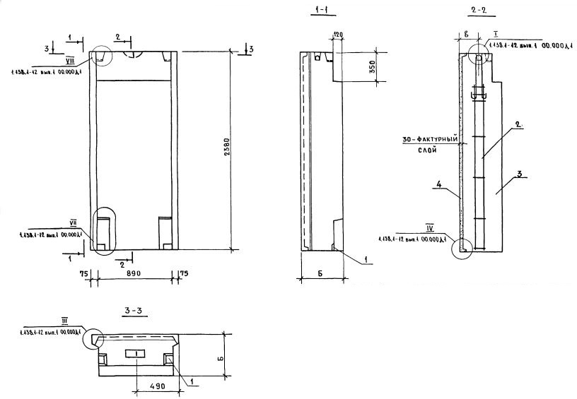
Характеристики изделия:
ПараметрЗначение
длина890 мм
ширина600 мм
высота2380 мм
масса1979 кг
нормативный документСерия 1.138.1-12

Серия 1.138.1-12

СБ – стеновые блоки наружных стен, тип блока 5 – парапетный блок.