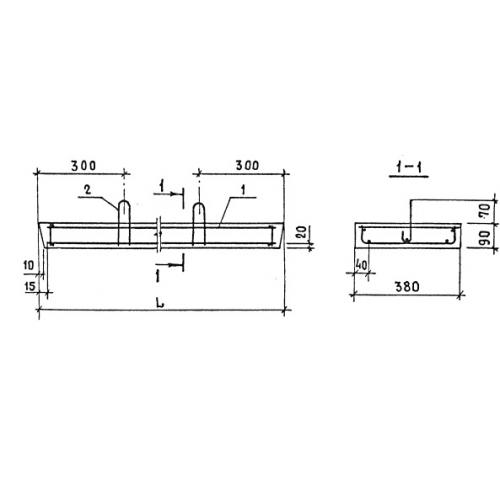
БП 19

Чертеж изделия:
Характеристики изделия:
ПараметрЗначение
длина1950 мм
ширина380 мм
высота90 мм
вес185 мм
серия1.139-1

БП 19 Плитные перемычки по серии 1.139-1.