БУ 24
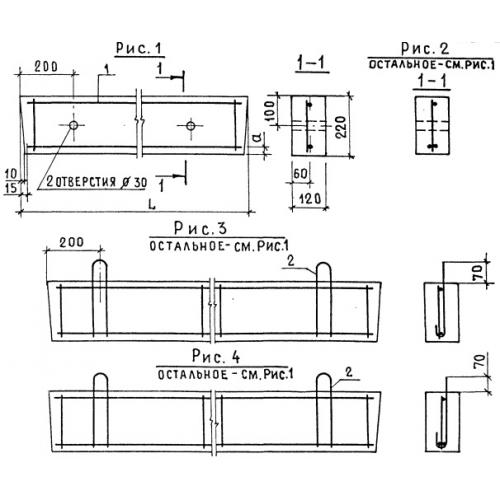
Характеристики изделия:
| Параметр | Значение |
|---|---|
| длина | 2450 мм |
| ширина | 120 мм |
| высота | 220 мм |
| вес | 160 кг |
| серия | 1.139-1 |
Цена:
Рассчитать стоимостьБУ 24 Перемычки брусковые усиленные по серии 1.139-1.
| Параметр | Значение |
|---|---|
| длина | 2450 мм |
| ширина | 120 мм |
| высота | 220 мм |
| вес | 160 кг |
| серия | 1.139-1 |
БУ 24 Перемычки брусковые усиленные по серии 1.139-1.
.jpg)