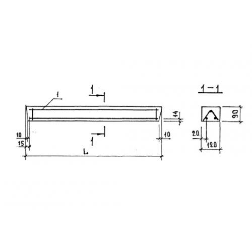
Б 13

Чертеж изделия:
Характеристики изделия:
ПараметрЗначение
длина1300 мм
ширина120 мм
высота90 мм
вес35 кг
серия1.139-1

Б 13 Перемычки брусковые по серии 1.139-1.