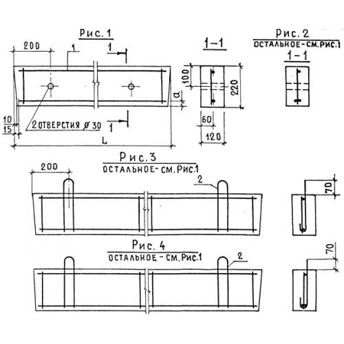
Б 22

Чертеж изделия:
Характеристики изделия:
ПараметрЗначение
длина2200 мм
ширина120 мм
высота220 мм
вес95 кг
серия1.139-1

Б 22 Перемычки брусковые по серии 1.139-1.