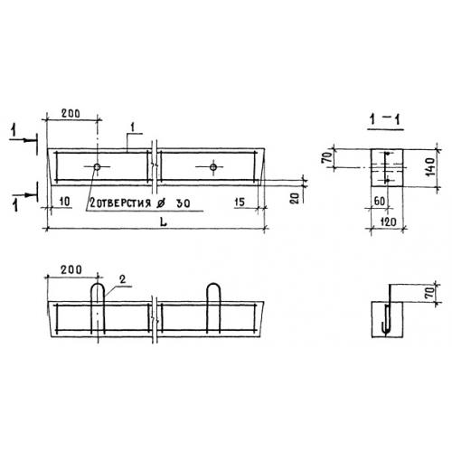
Б 24

Чертеж изделия:
Характеристики изделия:
ПараметрЗначение
длина2450 мм
ширина120 мм
высота140 мм
вес105 кг
серия1.139-1

Б 24 Перемычки брусковые по серии 1.139-1.