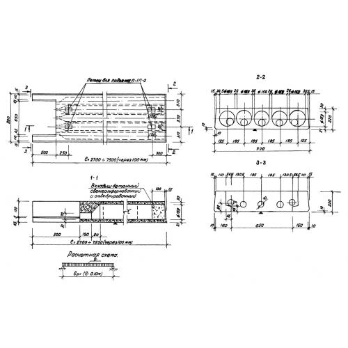
КНК 31.10

Чертеж изделия:
Характеристики изделия:
ПараметрЗначение
длина3100 мм
ширина990 мм
высота220 мм
вес8550 кг
серия1.141 КР-1

КНК 31.10 Панель с консольными выпускными ребрами. Панели перекрытия многопустотные по серии 1.141 КР-1.