П 42.6.35
Характеристики изделия:
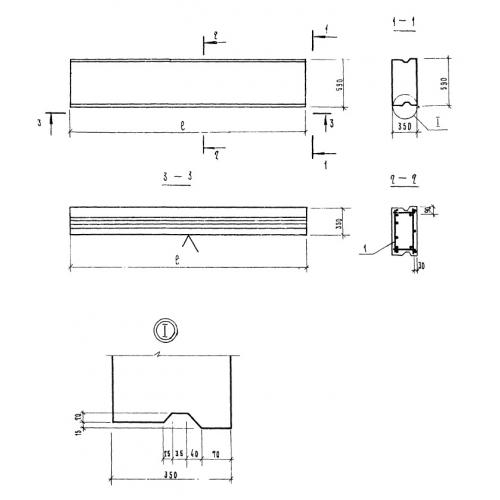
| Параметр | Значение |
|---|---|
| длина | 4170 мм |
| ширина | 590 мм |
| высота | 300 мм |
| вес | 620 кг |
| серия | 1.165.1-10 |
Цена:
Рассчитать стоимостьП 42.6.35 Панели покрытия по серии 1.165.1-10.
| Параметр | Значение |
|---|---|
| длина | 4170 мм |
| ширина | 590 мм |
| высота | 300 мм |
| вес | 620 кг |
| серия | 1.165.1-10 |
П 42.6.35 Панели покрытия по серии 1.165.1-10.
