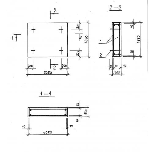
ПФ 18.20

Чертеж изделия:
Характеристики изделия:
ПараметрЗначение
длина1820 мм
ширина2020 мм
высота500 мм
вес4600 кг
серия1.189.1-8

ПФ 18.20 Плиты фундамента для обычных грунтов по серии 1.189.1-8.