ШЛВ 7-40
Характеристики изделия:
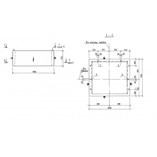
| Параметр | Значение |
|---|---|
| длина | 1780 мм |
| ширина | 1980 мм |
| высота | 1430 кг |
| вес | 1430 кг |
| серия | 1.189.1-8 |
Цена:
Рассчитать стоимостьШЛВ 7-40 Блоки лифтовой шахты верхние по серии 1.189.1-8.
| Параметр | Значение |
|---|---|
| длина | 1780 мм |
| ширина | 1980 мм |
| высота | 1430 кг |
| вес | 1430 кг |
| серия | 1.189.1-8 |
ШЛВ 7-40 Блоки лифтовой шахты верхние по серии 1.189.1-8.
