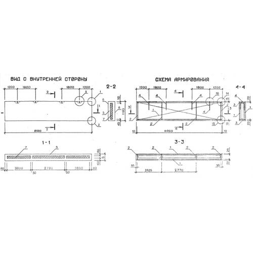
ПСТ 90.12.2.5 панели стеновые
Характеристики изделия:
| Параметр | Значение |
|---|---|
| длина | 8980 мм |
| ширина | 250 мм |
| высота | 1185 мм |
| масса | 3910 кг |
| нормативный документ | Серия 1.232.1-7 |
Цена:
Рассчитать стоимостьПСТ 90.12.2.5 Панели стеновые трехслойные (рядовые) Серия 1.232.1-7.
