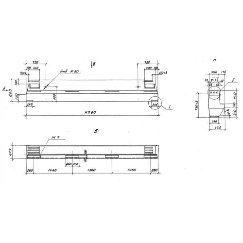
Б 39 ригели

Чертеж изделия:
Характеристики изделия:
ПараметрЗначение
длина4980 мм
ширина495 мм
высота800 мм
масса3500 кг
нормативный документСерия 1.420-35.95

Б 39  Ригели с полками для опирания плит  (однополочные ригели) Серия 1.420-35.95.