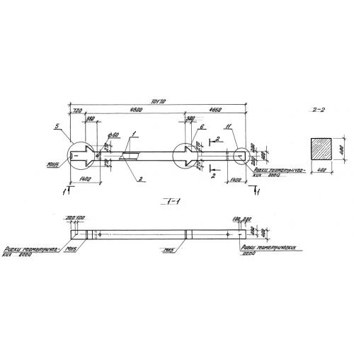
К 36 колонны
Характеристики изделия:
| Параметр | Значение |
|---|---|
| длина | 10170 мм |
| ширина | 400 мм |
| высота | 400 мм |
| масса | 4100 кг |
| нормативный документ | Серия 1.420-35.95 |
Цена:
Рассчитать стоимостьК 36 Колонны Серия 1.420-35.95.
| Параметр | Значение |
|---|---|
| длина | 10170 мм |
| ширина | 400 мм |
| высота | 400 мм |
| масса | 4100 кг |
| нормативный документ | Серия 1.420-35.95 |
К 36 Колонны Серия 1.420-35.95.
