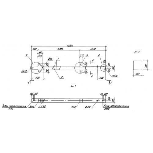
К 70 колонны

Чертеж изделия:
Характеристики изделия:
ПараметрЗначение
длина10920 мм
ширина400 мм
высота400 мм
масса4600 кг
нормативный документСерия 1.420-35.95

К 70 Колонны Серия 1.420-35.95.