БК 6 балки подкрановые

Чертеж изделия:
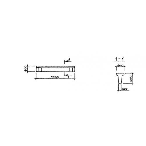
Характеристики изделия:
ПараметрЗначение
длина5950 мм
ширина600 мм
высота800 мм
масса3500 кг
нормативный документСерия 1.426.1-4

БК 6  Подкрановые балки Серия 1.426.1-4.