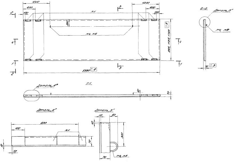
ПСЛН AV-0,9-6-122
Характеристики изделия:
| Параметр | Значение |
|---|---|
| Длина | 5980 мм |
| Ширина | 70 мм |
| Высота | 885 мм |
| Масса | 710 кг |
| Нормативный документ | Серия 1.432-10 |
Цена:
Рассчитать стоимостьПредварительно напряженные панели из легких бетонов, армированные сталью класса A-V, по Серии 1.432-10.
ПСЛН AV-0,9-6-122 Рядовая панель у температурного шва и в углу зданий по продольной стене.