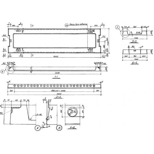
П 1

Чертеж изделия:
Характеристики изделия:
ПараметрЗначение
длина5650 мм
ширина1490 мм
высота220 мм
вес2500 кг
серия1.440-1

П 1 Плиты ребристые по серии 1.440-1.