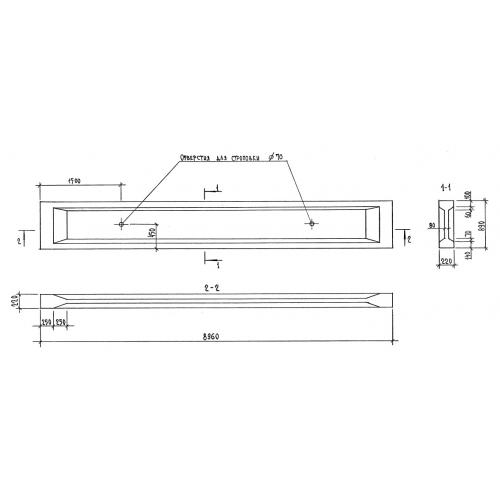
БСП 9.2 балки стропильные
Характеристики изделия:
| Параметр | Значение |
|---|---|
| длина | 8960 мм |
| ширина | 220 мм |
| высота | 890 мм |
| масса | 2750 кг |
| нормативный документ | Серия 1.462.1-10/93 |
Цена:
Рассчитать стоимостьБСП 9.2 Балки стропильные с параллельными поясами Серия 1.462.1-10/93.
