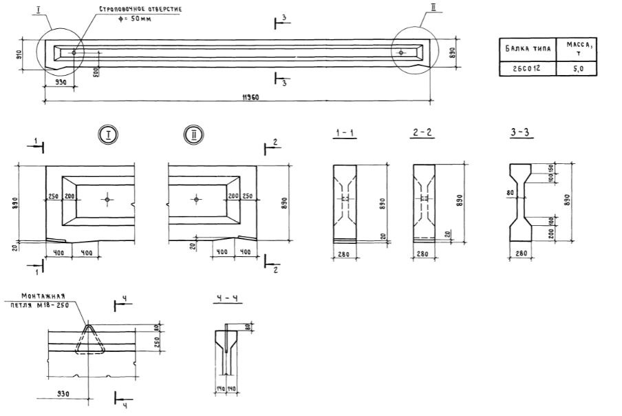
БСО 12 Балки для зданий со скатной кровлей
Характеристики изделия:
| Параметр | Значение |
|---|---|
| длина | 11960 мм |
| ширина | 280 мм |
| высота | 890 мм |
| масса | 5000 кг |
| нормативный документ | Серия 1.462.1-1/88 |
Цена:
Рассчитать стоимостьБСО 12 Балки стропильные для зданий со скатной кровлей Серия 1.462.1-1/88.