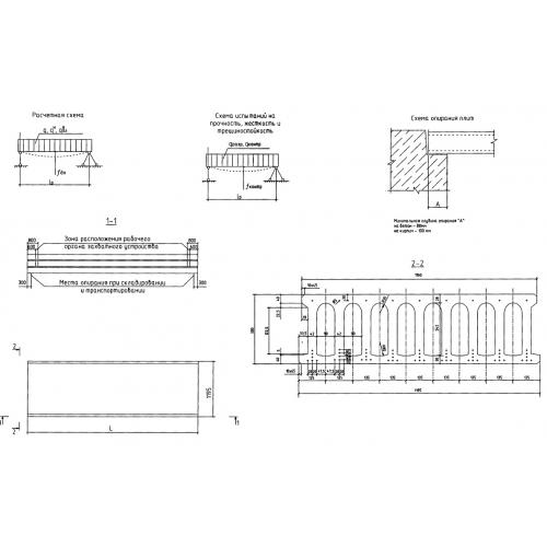
3ПБ 42-12

Чертеж изделия:
Характеристики изделия:
ПараметрЗначение
длина4180 мм
ширина1195 мм
высота300 мм
вес1850 кг
серия164/07-ПР-КЖ

3ПБ 42-12 Плита перекрытия многопустотная, выполненная методом непрерывного формования по серии 164/07-ПР-КЖ.