РПС 24
Характеристики изделия:
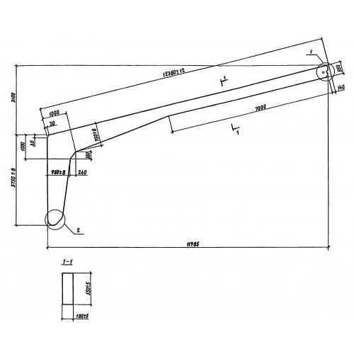
| Параметр | Значение |
|---|---|
| длина | 12380 мм |
| ширина | 180 мм |
| высота | 6850 мм |
| вес | 4750 кг |
| серия | 1.822.1-2/82 |
Цена:
Рассчитать стоимостьРПС 24 Сельскохозяйственные полурамы по серии 1.822.1-2/82.
| Параметр | Значение |
|---|---|
| длина | 12380 мм |
| ширина | 180 мм |
| высота | 6850 мм |
| вес | 4750 кг |
| серия | 1.822.1-2/82 |
РПС 24 Сельскохозяйственные полурамы по серии 1.822.1-2/82.
