ПСД 60.18.40

Чертеж изделия:
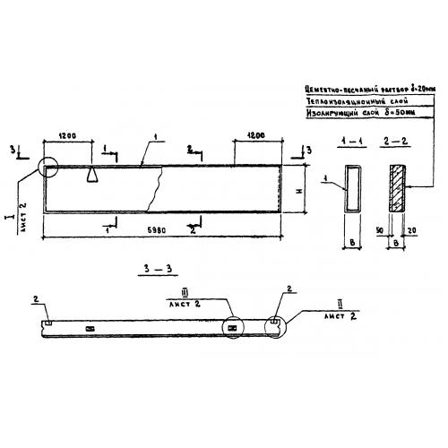
Характеристики изделия:
ПараметрЗначение
длина5980 мм
ширина400 мм
высота1780 мм
вес8100 кг
серия1.832.1-9

ПСД 60.18.40 Панели стеновые двухслойные по серии 1.832.1-9.