БПС 7.5

Чертеж изделия:
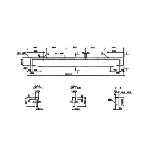
Характеристики изделия:
ПараметрЗначение
длина7470 мм
ширина200 мм
высота700 мм
вес1400 кг
серия1.849.1-5.93

БСП 7.5 Балки для чердачных перекрытий сельскохозяйственных зданий по серии 1.849.1-5.93.