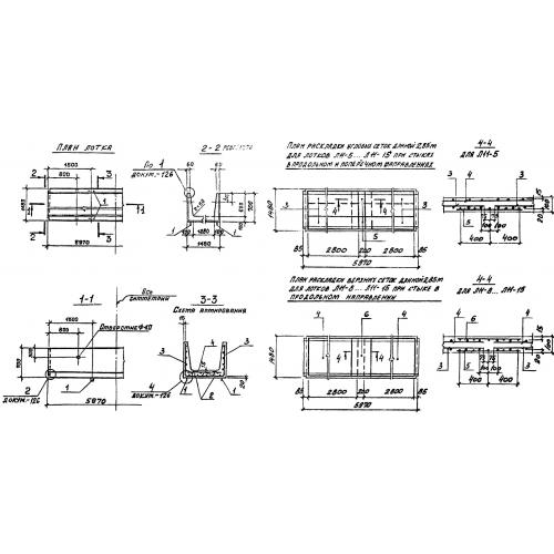
Л 11 лотки
Характеристики изделия:
| Параметр | Значение |
|---|---|
| длина | 5970 мм |
| ширина | 1480 мм |
| высота | 700 мм |
| масса | 3600 кг |
| нормативный документ | Серия 3.006.1-2/87 |
Цена:
Рассчитать стоимостьЛ 11 Лотки теплотрасс Серия 3.006.1-2/87.
| Параметр | Значение |
|---|---|
| длина | 5970 мм |
| ширина | 1480 мм |
| высота | 700 мм |
| масса | 3600 кг |
| нормативный документ | Серия 3.006.1-2/87 |
Л 11 Лотки теплотрасс Серия 3.006.1-2/87.
