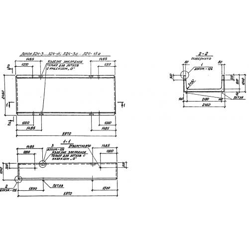
Л 24 лотки

Чертеж изделия:
Характеристики изделия:
ПараметрЗначение
длина5970 мм
ширина2460 мм
высота1040 мм
масса8100 кг
нормативный документСерия 3.006.1-2/87

Л 24 Лотки теплотрасс Серия 3.006.1-2/87.