Тв 2
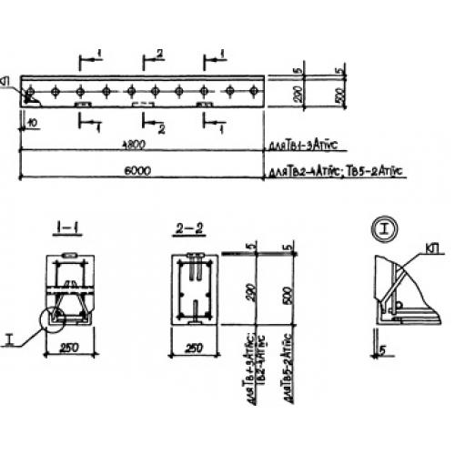
Характеристики изделия:
| Параметр | Значение |
|---|---|
| длина | 6000 мм |
| ширина | 250 мм |
| высота | 290 мм |
| масса | 110 кг |
| нормативный документ | Серия 3.015-3/92 |
Цена:
Рассчитать стоимостьТв 2 Траверсы Серия 3.015-3/92.
| Параметр | Значение |
|---|---|
| длина | 6000 мм |
| ширина | 250 мм |
| высота | 290 мм |
| масса | 110 кг |
| нормативный документ | Серия 3.015-3/92 |
Тв 2 Траверсы Серия 3.015-3/92.
