СНВ
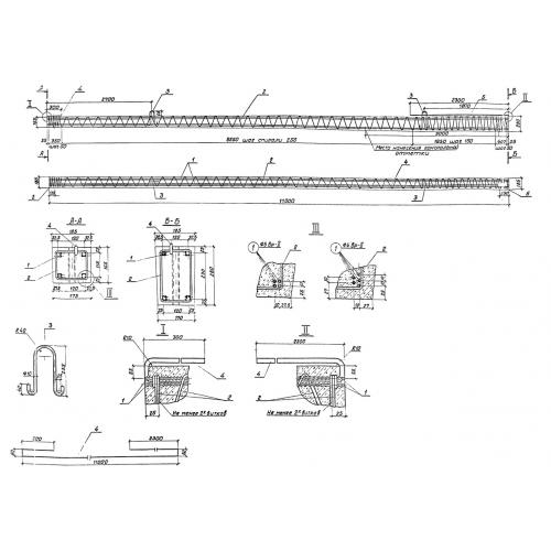
Характеристики изделия:
| Параметр | Значение |
|---|---|
| длина | 11000 мм |
| ширина | 185 мм |
| высота | 280 мм |
| вес | 1125 кг |
| серия | 3.407-101 |
Цена:
Рассчитать стоимостьСНВ Стойки напряженные вибрированные по серии 3.407-101.
| Параметр | Значение |
|---|---|
| длина | 11000 мм |
| ширина | 185 мм |
| высота | 280 мм |
| вес | 1125 кг |
| серия | 3.407-101 |
СНВ Стойки напряженные вибрированные по серии 3.407-101.
