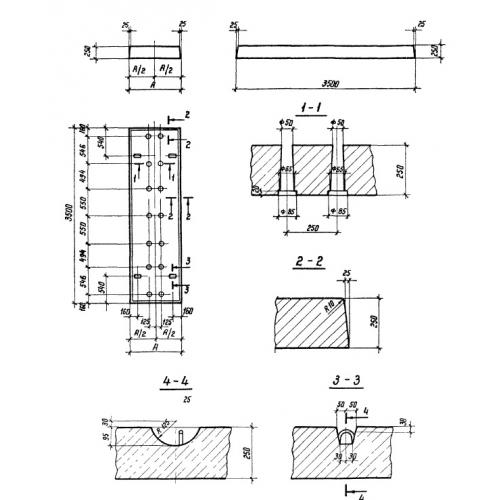
ПФ 35-15

Чертеж изделия:
Характеристики изделия:
ПараметрЗначение
длина3500 мм
ширина1500 мм
высота250 мм
масса3280 кг
нормативный документСерия 3.407.1-148

ПФ 35-15  Плиты фундаментные Серия 3.407.1-148.