БН 1.236

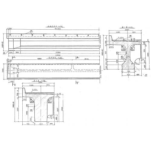
Чертеж изделия:
Характеристики изделия:
ПараметрЗначение
длина23600 мм
ширина2060 мм
высота2230 мм
вес82500 кг
серия3.501.1-175.93

БН 1.236 Балки ребристые из предварительно напряженного железобетона по серии 3.501.1-175.93.