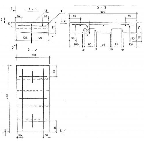
В 1

Чертеж изделия:
Характеристики изделия:
ПараметрЗначение
длина495 мм
ширина250 мм
высота74 мм
вес20 кг
серия3.501.1-175.93

В 1 Блоки перекрытия продольного шва по серии 3.501.1-175.93.