БТ 5

Чертеж изделия:
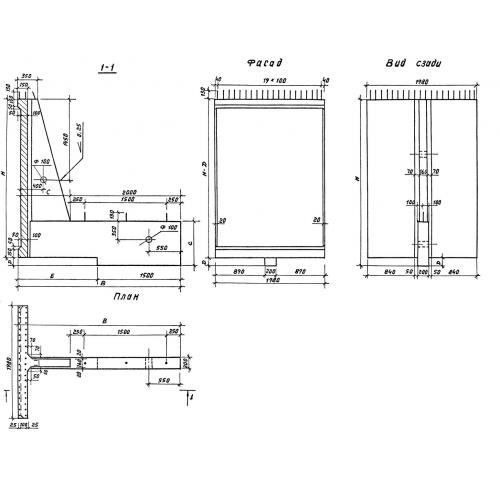
Характеристики изделия:
ПараметрЗначение
длина3250 мм
ширина1980 мм
высота4850 мм
вес5440 кг
серия3.503.1-67

БТ 5 Блоки контрфорсные таврового сечения по серии 3.503.1-67.