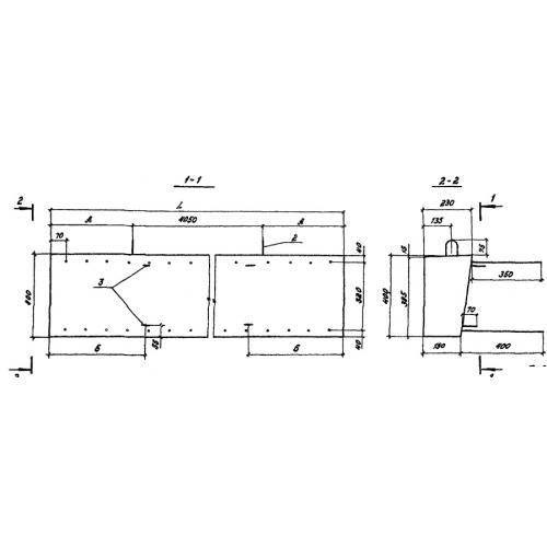
РН 1

Чертеж изделия:
Характеристики изделия:
ПараметрЗначение
длина5470 мм
ширина230 мм
высота400 мм
вес1180 кг
серия3.503.1-75

РН 1 Блоки насадки по серии 3.503.1-75.