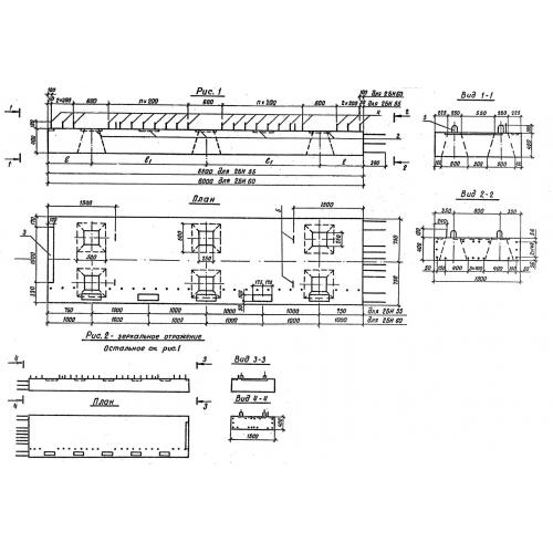
2БН 55
Характеристики изделия:
| Параметр | Значение |
|---|---|
| длина | 5500 мм |
| ширина | 1500 мм |
| высота | 400 мм |
| вес | 7330 кг |
| серия | 3.503.1-79 |
Цена:
Рассчитать стоимость2БН 55 - блоки насадок. Насадки на сваи по серии 3.503.1-79.
| Параметр | Значение |
|---|---|
| длина | 5500 мм |
| ширина | 1500 мм |
| высота | 400 мм |
| вес | 7330 кг |
| серия | 3.503.1-79 |
2БН 55 - блоки насадок. Насадки на сваи по серии 3.503.1-79.
