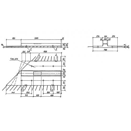
РП 15 блок разделительной полосы

Чертеж изделия:
Характеристики изделия:
ПараметрЗначение
Длина3320 мм
ширина2060 мм
высота240 мм
вес1100 кг

РП 15 Блоки разделительной полосы по серии 3.503.1-81.