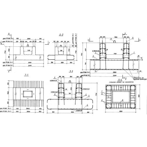
Ф 330-74
Характеристики изделия:
| Параметр | Значение |
|---|---|
| длина | 3400 мм |
| ширина | 3300 мм |
| высота | 1750 мм |
| вес | 15400 кг |
| нормативный документ | Серия 3.503.1-90 |
Цена:
Рассчитать стоимостьФ 330-74 Симметричные блоки фундамента по Серии 3.503.1-90.
| Параметр | Значение |
|---|---|
| длина | 3400 мм |
| ширина | 3300 мм |
| высота | 1750 мм |
| вес | 15400 кг |
| нормативный документ | Серия 3.503.1-90 |
Ф 330-74 Симметричные блоки фундамента по Серии 3.503.1-90.
