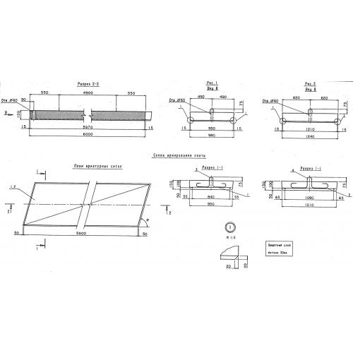
ПК 600.124.15 Плиты переходные косые
Характеристики изделия:
| Параметр | Значение |
|---|---|
| длина | 6000 мм |
| ширина | 1240 мм |
| высота | 150 мм |
| вес | 2750 кг |
| нормативный документ | Серия 3.503.1-96 |
Цена:
Рассчитать стоимостьПК 600.124.15 Плиты переходные косые по Серии 3.503.1-96.
