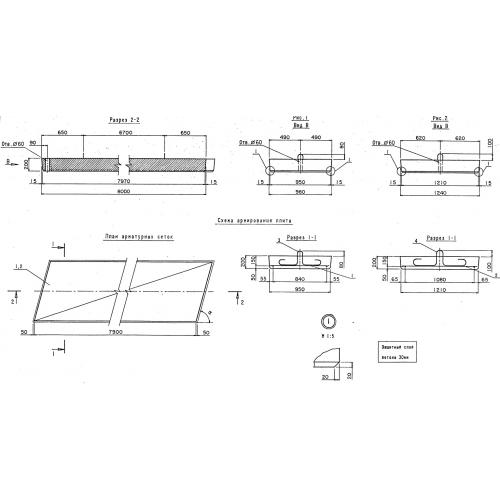
ПК 800.124.20 Плиты переходные косые

Чертеж изделия:
Характеристики изделия:
ПараметрЗначение
длина8000 мм
ширина1240 мм
высота200 мм
вес4900 кг
нормативный документСерия 3.503.1-96

ПК 800.124.20 Плиты переходные косые по Серии 3.503.1-96.