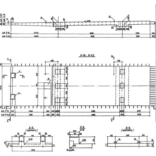
П-11.5

Чертеж изделия:
Характеристики изделия:
ПараметрЗначение
длина8080 мм
ширина2220 мм
высота254 мм
вес5750 кг
серия3.503.9-43/89

П-11.5 Блоки плит по серии 3.503.9-43/89.