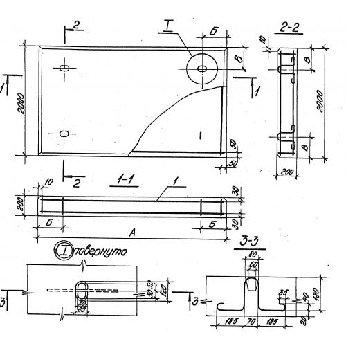
П 20.20

Чертеж изделия:
Характеристики изделия:
ПараметрЗначение
длина2000 мм
ширина2000 мм
высота200 мм
масса2000 кг
нормативный документСерия 3.504.1-20

П 20.20 Плиты покрытия сборные по Серии 3.504.1-20.