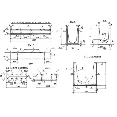
ЛК 597.70.50

Чертеж изделия:
Характеристики изделия:
ПараметрЗначение
длина5970 мм
ширина700 мм
высота500 мм
вес2700 кг
серия3.818.9-2

ЛК 597.70.50 Лотки для каналов навозоудаления по серии 3.818.9-2.